Hos OG Rådgivning ApS udarbejder vi professionelle byggetegninger, der skaber overblik, tryghed og de rette forudsætninger for dit byggeprojekt. Vi hjælper både private boligejere, entreprenører og udviklingsselskaber med arkitekttegninger, plantegninger, facadetegninger og tekniske tegninger, der lever op til alle krav i Bygningsreglementet.










Fra enfamiliehuse og tilbygninger til større boligbyggerier og erhvervsejendomme – vi sikrer, at dine tegninger bliver udarbejdet med præcision og detaljer, der gør projektet muligt at realisere. Hos os får du mere end bare streger på papir: vi leverer byggetegninger, der dokumenterer kvalitet, overholder lovkrav og danner grundlag for både byggetilladelser og entreprenørens arbejde.
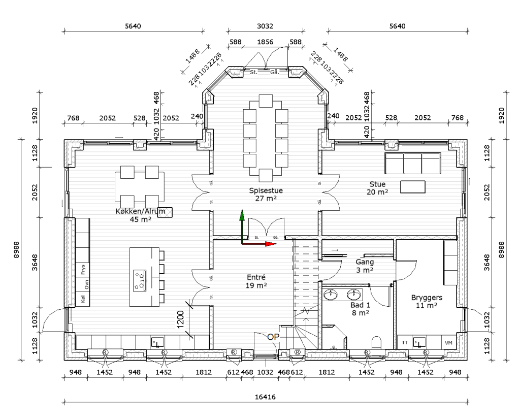
Professionelle plantegninger giver et klart overblik over indretning, funktionalitet og flow i bygningen. Hos OG Rådgivning ApS udarbejder vi plantegninger, der danner grundlag for byggetilladelse og udførelse.
Med en facadetegning kan du visualisere bygningens udtryk, materialer og proportioner. Vi sikrer præcise tegninger, der både understøtter æstetikken og opfylder kravene i Bygningsreglementet.
Snittegninger viser bygningens højde, konstruktion og tekniske sammenhænge. Vores tegninger gør det nemt at forstå projektets opbygning og sikrer korrekt udførelse fra kælder til kvist.
Et konstruktionssnit dokumenterer materialevalg, lag og tekniske detaljer i konstruktionen. Vi udarbejder nøjagtige tegninger, der giver entreprenører og myndigheder det fulde overblik.
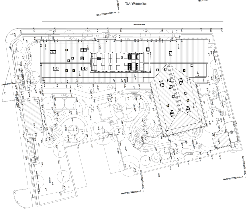
En situationsplan viser bygningens placering på grunden i forhold til skel, vej og omgivelser. Vi leverer detaljerede situationsplaner, der opfylder kommunens krav til byggetilladelse.
Detailtegninger går helt tæt på de vigtige løsninger i byggeriet – fx samlinger, vinduer og trapper. Hos OG Rådgivning sikrer vi, at detaljerne er gennemtænkte, så projektet kan udføres korrekt og uden fejl.
Vi starter altid med en grundig snak om dine ønsker og krav, så vi kan rådgive dig bedst muligt.
Vi undersøger projektets rammer, lokalplan, lysforhold og funktion, så tegningerne bliver både realistiske og æstetiske.
Vi laver præcise og forståelige tegninger, som kan bruges direkte til byggetilladelse, entreprenør og håndværkere.
Vi sikrer, at tegningerne lever op til alle tekniske krav, så dit projekt kan realiseres uden unødvendige forsinkelser.
Hos OG Rådgivning ApS er vi ikke blot en tegnestue – vi er dine byggetekniske rådgivere. Med erfaring fra projekter som Carlsberg Byen og større boligudviklinger hjælper vi både private og professionelle med at omsætte idéer til bygbar dokumentation. Vi arbejder tæt sammen med entreprenører, bygherrer og myndigheder for at sikre, at dit projekt bliver godkendt, bygget korrekt og afleveret til tiden.